Boligtype B

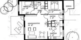
Boligtype B på 91 m2

Stor, lys stue på 29 m2, værelse på 11 m2, soveværelse med skabe, badeværelse med lyse fliser og brus, spisekøkken, bryggers og entre.

A/B Omegaparken

Ω A/B Omegaparken 18, 8260 Viby J :
Formand: Birger Hansen e-mail: omegaparkenformand@gmail.com
Tlf. +45 29 72 34 87
.Copyright 2025 - A/B Omegaparken
Location Map

System til ejer-, andel-, grundejer- og alle andre typer af foreninger administreret af boligforeningsweb.dk (Globalt: anyhoa.com)